ザ・パークハビオ渋谷クロス 4階 1DK 賃貸物件詳細

☆ネット無料☆新着物件を日々更新!お気軽にご相談ください

基本データ

物件タイプ
賃貸マンション
賃料
24万円
管理費等
10000
住所
東京都目黒区青葉台3丁目1-1
交通
山手線 渋谷駅 徒歩11分
京王電鉄井の頭線 神泉駅 徒歩6分
敷金/礼金
1ヶ月/1ヶ月
保証金
-
敷引・償却
 - 
更新料
新賃料の1ヶ月分
契約期間
2年 
カード決済
-
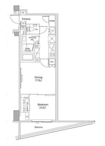
間取り
1DK
専有面積
37.79㎡
所在階/階数
4階/11階建
建物名
ザ・パークハビオ渋谷クロス 
築年月(築年数)
2022年12月(築2年11ヶ月)
方位
 
建物構造
鉄骨 
駐車場
-
現況
居住中 
入居可能時期
2025年10月下旬
住宅保険

設備など

設備
上水道・都市ガス・本下水・バス・トイレ別・シャワー・ガスコンロ可・システムキッチン・給湯・追焚機能・エアコン・ウォークインクローゼット・室内洗濯機置き場・CS・BS端子・オートロック・エレベーター・バルコニー・フローリング・宅配BOX・駐輪場・バイク置き場・インターネット対応・モニタ付インターホン・温水洗浄便座・浴室乾燥機・洗面所独立・防犯カメラ・インターネット無料・シューズボックス 
備考
【初期費用・web内見・入居日交渉等なんでもご相談ください】空室の確認は即時返答★現地お待合わせでもご案内可能/品川・目黒・大田・世田谷区・その他エリアのネットに出ていない新着・類似物件も多数ご用意★仕様・図面・写真等に相違があった場合は現況を優先します。退去時清掃費用有、エアコン清掃費用有、ペット飼育条件有 【設備・特記事項備考】専用バス・専用トイレ/駆付けサポート24 16500円/保証会社の利用:加入要/保証会社費用: 詳細はお問い合わせください/鍵交換費用:33000円 
特記事項
ペット相談可・デザイナーズ物件・24時間ゴミ出し可 
  • バス・トイレ別
  • 2階以上
  • 駐車場(近隣含)
  • 室内洗濯機置き場
  • エアコン付き
  • ペット相談可
  • フローリング
  • オートロック付き
  • 南向き
  • バルコニー
  • 追炊機能
  • 角部屋

省エネ性能

エネルギー消費性能 -
断熱性能 -
目安光熱費 -

目黒区の住みよさランキングと都市データ

住みよさランキング

総合評価
都内33
全国387
偏差値
49.82

項目別順位

安心度
都内37
全国787
利便度
都内13
全国210
快適度
都内41
全国212
富裕度
都内8
全国21

保育所・幼稚園・学校

子ども医療費助成
(通院、年齢制限)
18歳年度末まで
子ども医療費助成
(通院、所得制限有無)
なし
子ども医療費助成
(入院、年齢制限)
18歳年度末まで
子ども医療費助成
(入院、所得制限有無)
なし
保育所等の状況
(施設数)
97施設都内15位全国64位
保育所等の状況
(利用児童数)
6,087人都内16位全国85位
保育所等の状況
(待機児童数)
0人都内1位全国1位

病院数・介護保険料

病院数9施設都内25位全国185位
一般診療所数343施設都内18位全国60位
1万人当たり病床数79.3床都内24位全国634位
1万人当たり医師数42.3人都内10位全国63位
介護保険施設定員数1,011人都内29位全国223位
介護保険料6,200円都内23位全国500位

環境・安全

千人当たり刑法犯認知件数4.77件都内25位全国604位
千人当たり交通事故件数2.57件都内37位全国597位

※提供データには細心の注意を払っておりますが、調査後に変更がある場合があります。 最新の情報につきましては各市区役所までお問い合わせいただくか、自治体HPなどをご確認ください。

※自治体別住みよさランキングのデータおよび各自治体情報は、株式会社東洋経済新報社の「都市データパック」を元に表示しています。

目黒区の都市データをもっと見る

財政健全度ランキング

以下の5つの視点から自治体の財政を評価し、財政健全度ランキングを算出している。

  1. 支出が収入の範囲内に収まっているか(収支)
  2. 外部環境の変化があっても柔軟に対応できるか(弾力性)
  3. 支出を税収で賄えているか(財政力)
  4. 税収には安定した裏付けがあるか(財政基盤)
  5. 財政上の負担を将来世代に先送りしていないか(将来負担)

全国1718市町村を対象として、市と町村の区分ごとに順位を算出した。他市と比較可能な指標がそろわない東京23区は除外。

この物件にお問合せする空室確認したい、初期費用について知りたいなど

必須お問い合わせ内容

その他、ご質問・ご希望等

お客様のご連絡先

必須お名前
例:山田太郎
必須メールアドレス(半角英数)
例:yamadataro@***.co.jp
任意電話番号
例:03XXXXXXXX 半角数字のみ、ハイフン無し

下記の「個人情報の取り扱いについて」をお読みいただき、同意の上で確認画面へお進みください。

個人情報の取り扱いについて

  • 本サービスは、お客様からの物件お問い合わせについて、株式会社NTTドコモが窓口となり、情報提供元の企業に対して転送を行うものです。なお、情報提供元の企業から物件の情報提供を行う不動産会社がある場合には、情報提供元の企業から物件の情報を提供している不動産会社にお客様の情報が転送され、管理されます。
  • 本サービスから記入いただいた個人情報は、資料送付・電子メール送信・電話連絡などの目的で当該物件の情報提供元の企業に転送され、管理されます(株式会社NTTドコモではお客様の個人情報を保有いたしません)。なお、情報提供元の企業から物件の情報提供を行う不動産会社がある場合には、情報提供元の企業から物件の情報を提供している不動産会社にお客様の情報が転送され、管理されます。
  • お問い合わせをされたお客様へは、情報提供元の企業もしくは物件の情報を提供した不動産会社が直接ご連絡致します。
  • 物件に関するお客様のお問い合わせについては、株式会社NTTドコモは一切関与いたしません。情報提供元の企業もしくは物件の情報を提供した不動産会社に直接お問い合わせください。
  • 詳しくは、下記をご参照ください。

不動産会社情報

問い合わせ先
商号:株式会社クレアスレント 新宿店
免許番号:国土交通大臣免許(1)第10473号
所在地:東京都新宿区西新宿1丁目22−1 スタンダードビル4階
TEL:03-6824-9402
取引態様:仲介
管理コード:136462
所属協会など:(公財)東日本不動産流通機構、(公社)首都圏不動産公正取引協議会、(公社)東京都宅地建物取引業協会

会社情報

この不動産会社に相談したい似たような物件も紹介してほしい

情報提供元
LIFULL HOME'S[1157100136462]
情報公開日
次回更新予定日
2025/10/19

無料電話問い合わせ

不動産会社に電話する(通話無料)
0037-634-09076-84274-2985

  • お引越し時のインターネット回線の移転手続き方法
  • 【dスマホローン】お借入れ残高の増加額10万円以上の方の中から抽選で1,000名さまにdポイント(期間・用途限定)1,000ポイントプレゼント!適用条件など詳細はこちら
  • OCN×ドコモ光新規お申込みで合計最大137,280円相当おトク!特典の内訳・適用条件など詳細はこちら
近辺の市区から探す
千代田区
中央区
港区
新宿区
文京区
周辺の駅から探す
周辺の駅の路線から探す
山手線
京王電鉄井の頭線

このページの先頭へ